03/10/2012
In the demanding world of commercial vehicle maintenance, the inspection pit remains an indispensable asset. It provides mechanics with unrestricted access to the underside of heavy goods vehicles, facilitating thorough inspections, repairs, and servicing. However, the true value and longevity of a vehicle pit are not solely determined by its design, but crucially by the expertise and precision of its installation. A poorly installed pit can lead to significant safety hazards, structural issues, and costly downtime. This article delves into the intricate process of installing commercial vehicle pits, highlighting the specialised methods that ensure a stable, durable, and safe working environment.

The Critical Role of Professional Pit Installation
Installing a commercial vehicle pit is far more complex than simply digging a hole and dropping in a pre-fabricated structure. It requires a deep understanding of civil engineering principles, ground conditions, structural loads, and workshop operational flow. Specialist pit installation companies, often employing their own dedicated teams, bring invaluable expertise to this process. These teams are typically on PAYE, indicating a direct employment model that fosters consistency, quality control, and a high level of commitment to each project.
The advantages of using such in-house teams are manifold. They are intimately familiar with the company's products and installation methodologies, ensuring that every pit is installed to the highest standards. This contrasts sharply with sub-contracted labour, where oversight can be challenging and consistency may vary.
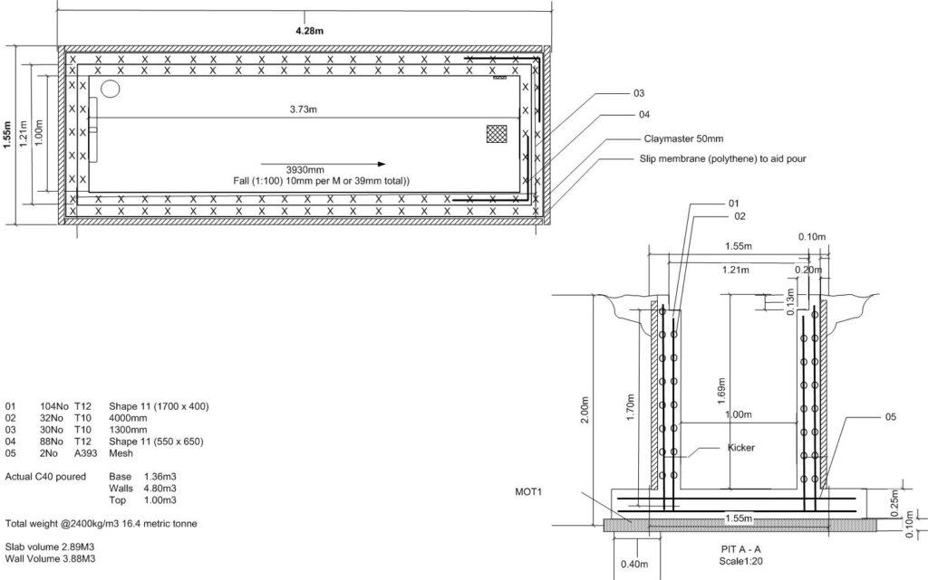
Innovative Methods: Building Strength from the Ground Up
One of the most critical aspects of a well-installed pit is its integration with the surrounding workshop floor. This isn't merely about creating a flush surface; it's about forming a unified, structurally sound entity. Leading pit manufacturers have developed highly efficient methods, often refined in-house over many years, to achieve this seamless integration. These techniques are designed to work effectively in both newly constructed workshops and existing facilities requiring pit retrofits.
The core innovation lies in the 'tying' of the pit into the surrounding concrete. This process is crucial for transferring loads evenly and preventing differential settlement, which could lead to cracking or instability. It ensures that the pit doesn't just sit within the floor but becomes an integral part of it, akin to adding a foundational strength to the entire workshop structure.
The Installation Journey: From Site Assessment to Structural Integration
The installation of a commercial vehicle pit is a meticulously planned and executed operation, involving several key stages:
- Site Survey and Planning: Before any ground is broken, a comprehensive site survey is conducted. This involves assessing the ground conditions, identifying any underground services (water, electricity, gas), and understanding the workshop's layout and future operational needs. Detailed drawings are produced, taking into account pit dimensions, access points, drainage, and safety features.
- Excavation and Ground Preparation: The precise excavation of the pit area is critical. The trench must be dug to exact dimensions, with careful consideration for the surrounding soil stability. Proper compaction of the base is essential to prevent future settlement. Drainage provisions, such as sumps and pipework, are installed at this stage to manage any water ingress.
- Pit Delivery and Positioning: Depending on the pit's design, it may be delivered as a pre-fabricated unit or assembled on site. Specialist lifting equipment is used to carefully lower the pit structure into the excavated trench. Precision is paramount here to ensure the pit is perfectly level and aligned with the workshop floor's intended finish level.
- The Crucial Concrete Tie-In: This is where the specialist methods truly shine. Once the pit is accurately positioned, the process of 'tying' it into the surrounding concrete begins. This typically involves:
- Reinforcement Bar (Rebar) Connection: Steel rebar is strategically placed and connected from the pit's structural frame into the surrounding concrete slab. This creates a continuous network of steel, distributing loads and preventing separation.
- Structural Anchoring Points: Specific anchoring points and connection plates on the pit structure are designed to interlock with the newly poured concrete. These act as strong mechanical links, ensuring the pit cannot move independently of the floor.
- Formwork and Concrete Pour: High-strength concrete is poured around the pit, encasing its base and sides, and connecting with the workshop floor's slab. Specialist techniques ensure a void-free pour and optimal curing conditions to achieve maximum structural strength. The use of high-grade reinforced concrete is standard, providing exceptional load-bearing capacity and durability.
- Surface Finishing: Once the concrete has cured sufficiently, the workshop floor surface around the pit is finished to a high standard, ensuring a smooth, level, and hard-wearing surface that seamlessly integrates with the pit's edges.
- Ancillary Installations: After the main structural work, essential ancillary features are installed. These include lighting systems (often explosion-proof), ventilation, compressed air lines, oil drainage systems, and safety features such as access steps, handrails, and pit covers.
New Floors vs. Existing Floors: Tailored Approaches
The methods employed for pit installation are adapted whether the project involves a brand-new workshop floor or retrofitting a pit into an existing one. In new builds, the pit installation can be integrated into the overall construction schedule, allowing for optimal sequencing of concrete pours and other trades. For existing floors, the process requires careful cutting of the existing slab, shoring, and often more intricate rebar tying techniques to ensure the new concrete integrates seamlessly with the old, maintaining overall floor integrity.
The End Result: Stability, Strength, and Longevity
The outcome of a professionally installed commercial vehicle pit is a structure of immense stability and durability. By becoming an integral part of the workshop floor, the pit benefits from the collective strength of the entire slab, resisting movement, cracking, and wear over decades of heavy use. This robust construction is essential for ensuring the ongoing safety of technicians working within and around the pit, as well as protecting the substantial investment in the workshop facility itself.
Furthermore, the efficient methods developed by specialist companies contribute to quicker installation times, minimising disruption to workshop operations. This blend of speed, precision, and structural integrity underpins the long-term efficiency and operational reliability of any commercial vehicle maintenance facility.
Comparative Analysis: Specialist vs. General Contractor
Choosing the right installer is paramount. Here's a brief comparison:
| Feature | Specialist Pit Installer | General Contractor (Less Experience) |
|---|---|---|
| Expertise | Deep knowledge of pit design, installation, regulations. In-house methods. | General construction knowledge, may lack specific pit expertise. |
| Structural Integration | Advanced techniques for seamless, strong concrete tie-in. | May use standard methods, potentially leading to weaker integration. |
| Safety Compliance | Rigorously adheres to specific pit safety standards and regulations. | General safety compliance, may overlook pit-specific nuances. |
| Efficiency/Speed | Highly efficient, in-house teams often complete faster with less disruption. | Project duration can be unpredictable, reliant on sub-contractors. |
| Long-term Durability | Designed for decades of heavy use, minimal risk of subsidence/cracks. | Higher risk of future structural issues, requiring costly repairs. |
| Cost (Initial) | May seem higher initially due to specialised services. | Potentially lower initial quote, but hidden costs/future repairs possible. |
| Warranty/Support | Comprehensive warranties and dedicated after-sales support. | Varies, may be less specific to pit performance. |
Frequently Asked Questions About Pit Installation
How long does it take to install a commercial vehicle pit?
The duration varies depending on the pit's size, complexity, and whether it's a new build or a retrofit. Typically, the excavation and main structural installation can take anywhere from a few days to a couple of weeks, with additional time for concrete curing and ancillary installations.
What safety features are essential for a commercial vehicle pit?
Essential safety features include adequate lighting, ventilation, emergency stop buttons, non-slip surfaces, safe access steps, guard rails, and potentially automatic pit covers when not in use. Compliance with local health and safety regulations is paramount.
Can a pit be installed in any existing workshop floor?
Most existing workshop floors can accommodate a pit, but a thorough structural survey is required to assess the existing slab's integrity and foundation. Factors like ground conditions, water tables, and the presence of underground services will influence feasibility and installation methods.
What maintenance does a vehicle pit require after installation?
Once installed, a pit requires minimal structural maintenance. Regular cleaning, ensuring drainage systems are clear, and periodic checks of lighting and safety features are usually sufficient. Any damage to the concrete or pit structure should be addressed promptly.
Is planning permission required for pit installation?
In the UK, significant structural alterations to a building, including the installation of a vehicle pit, often require building regulations approval and potentially planning permission, especially if it affects the external appearance or use of the building. It's crucial to check with your local authority before commencing any work.
Conclusion
The installation of a commercial vehicle inspection pit is a significant undertaking that demands precision, expertise, and adherence to the highest safety standards. By employing highly efficient, in-house developed methods and dedicated PAYE installation teams, specialist companies ensure that pits are not merely placed but are intricately tied into the surrounding concrete, resulting in a stable structure with the robust structural strength of reinforced concrete. This meticulous approach guarantees that the pit becomes an integral, durable, and safe part of the workshop floor, providing a reliable foundation for years of efficient vehicle maintenance.
If you want to read more articles similar to Commercial Vehicle Pit Installation Unpacked, you can visit the Automotive category.
